• 扫一扫
    打开 · 手机版

您当前的位置:首页 > 部门频道栏目 > 韶关市自然资源局 > 规划公示 > 批后公告

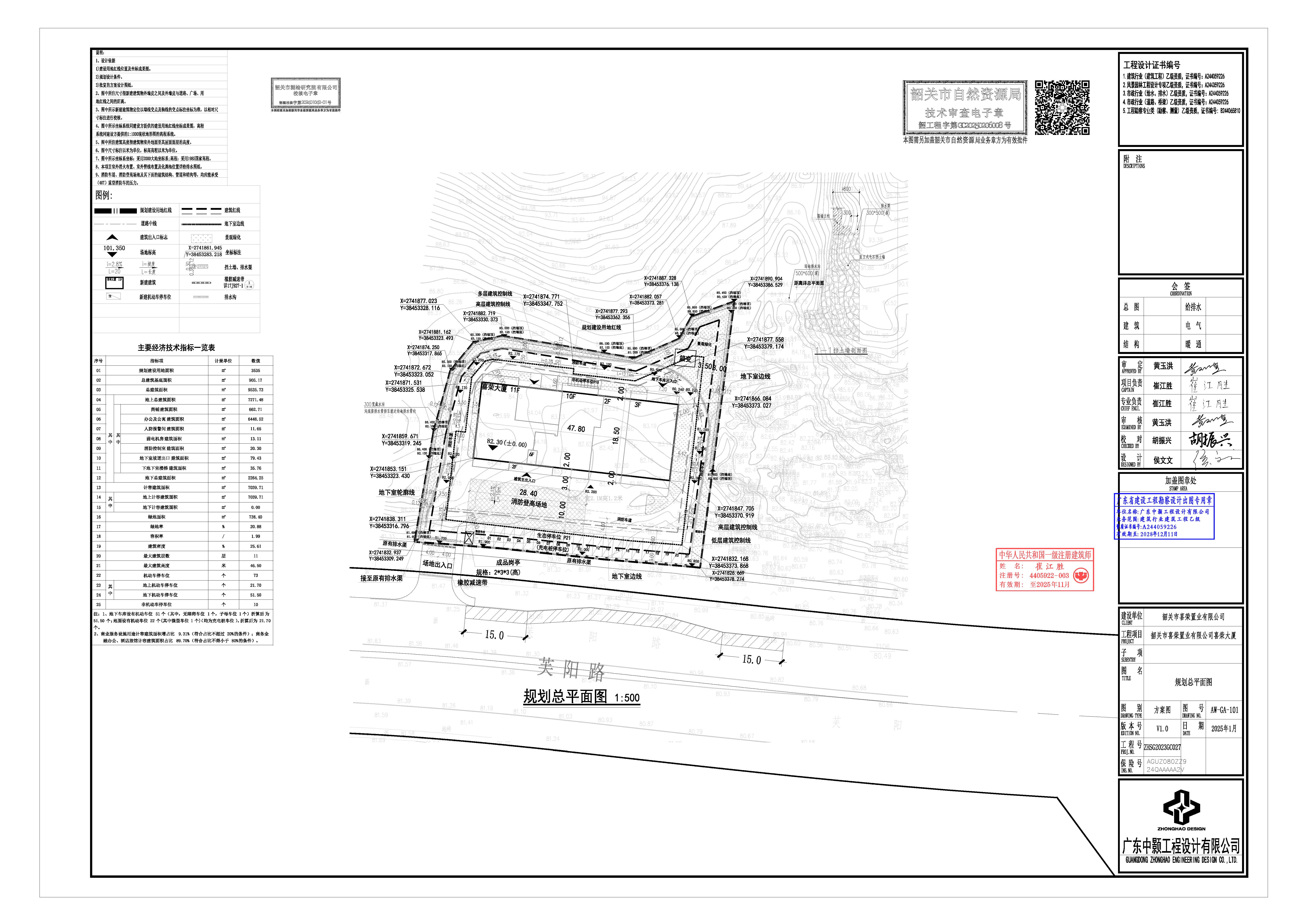
韶关市喜荣置业有限公司喜荣大厦项目建设工程规划许可证批后公告

时间:2025-09-22 11:25:50 来源:本网 访问量: -
【打印】 【字体:

根据省自然资源厅"双随机、一公开"工作要求,我局于2025年9月启用新的建设工程规划许可证批后公告模板,现对2025年2月已批后公告项目,按照新模板进行重新公告,具体如下:制表(项目审定情况)+附图。


韶关市喜荣置业有限公司喜荣大厦项目建设工程规划许可证批后公告.wps


总平面—韶关市喜荣置业有限公司喜荣大厦.jpg

相关文件: